
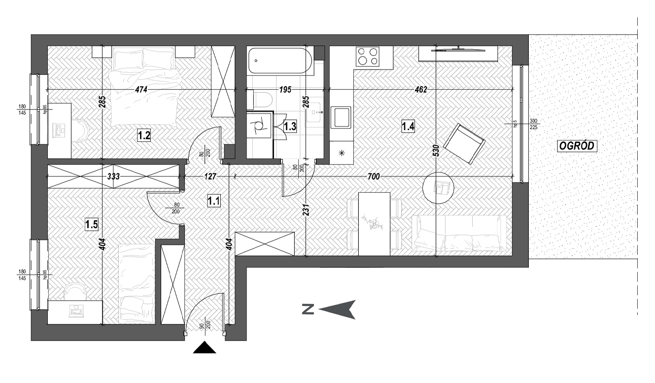
Mieszkanie 40/1
OSIEDLE PLATANOVE to nowa inwestycja kameralnego kompleksu mieszkalnego, powstająca w prężnie rozwijających się południowych dzielnicach Katowic. Lokalizacja osiedla zachwyci każdego, kto ceni życie w ciszy, nieopodal miasta. Założeniem projektu jest stworzenie wygodnej przestrzeni do życia z zachowaniem wszelkich udogodnień jakie daje bliskość miasta oraz dobra komunikacja.





