
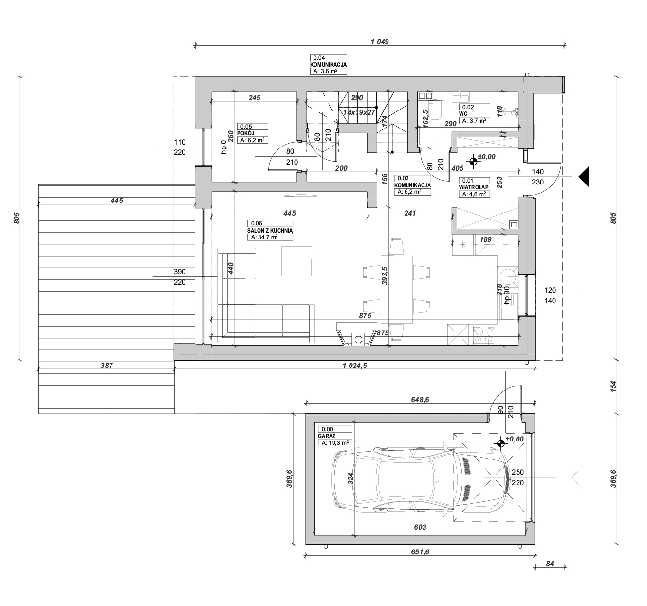
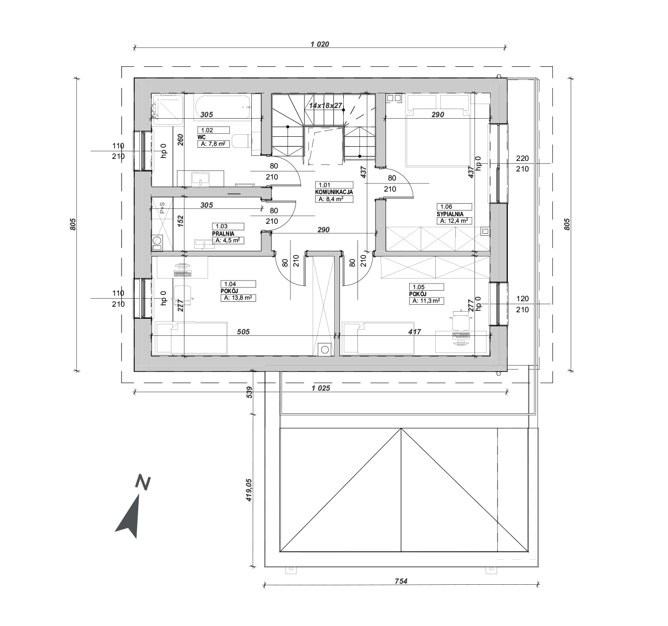
Budynek wolnostojący, ul. Norblina
Inwestycja Edelbud przy ul. Norblina w Katowicach to nowoczesny budynek o wyrazistej, dopracowanej bryle, zaprojektowany z myślą o ponadczasowej estetyce i wysokim komforcie użytkowania. Architektura oparta na czystych liniach i harmonijnych proporcjach podkreśla prestiżowy charakter inwestycji, a przemyślany układ przestrzeni zapewnia funkcjonalność odpowiadającą współczesnym oczekiwaniom.
W realizacji zastosowano solidne, wysokiej jakości materiały oraz sprawdzone rozwiązania techniczne, które przekładają się na trwałość budynku, estetykę detali i komfort codziennego życia. Kameralne otoczenie i spokojny charakter lokalizacji dopełniają całości, tworząc inwestycję o podwyższonym standardzie.


